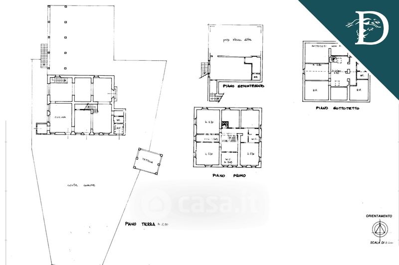
Villa in vendita Via Campioni , Buggiano
Salva
Casa.it
1/39
  • Street View
  • Map