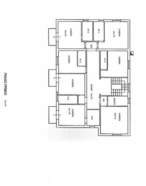
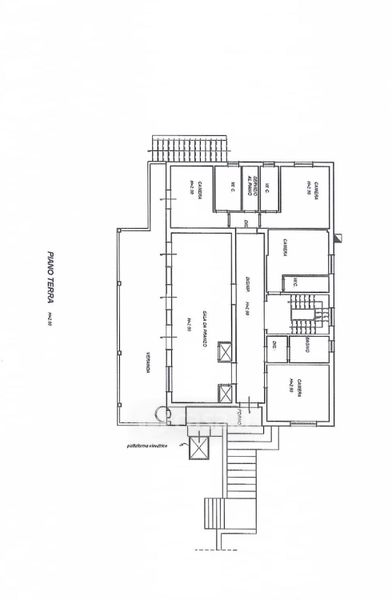
Villa in vendita Via dei Cocciorini , Camaiore
Salva
Casa.it
1/50
  • Street View
  • Map