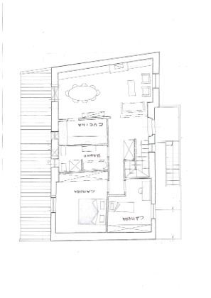
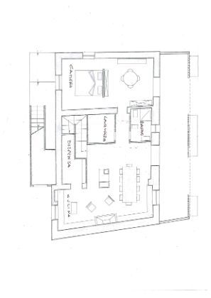
Villa in vendita Via delle Selvette , Capannori
Salva
Casa.it
1/33
  • Street View
  • Map