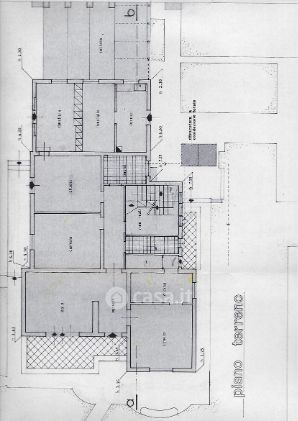
Villa in vendita Via del Chiasso Lunata 69, Capannori
Salva
Casa.it
1/54
  • Street View
  • Map