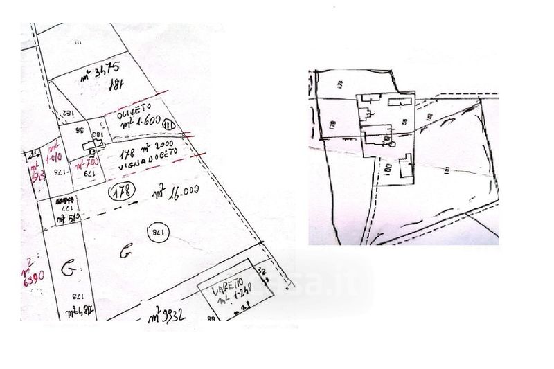
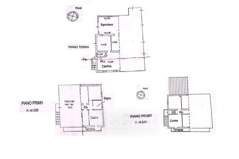
Villa in vendita C.s. Chianacce 132, Cortona
Salva
Casa.it
1/15
  • Street View
  • Map