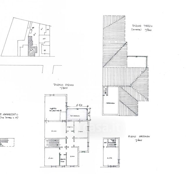
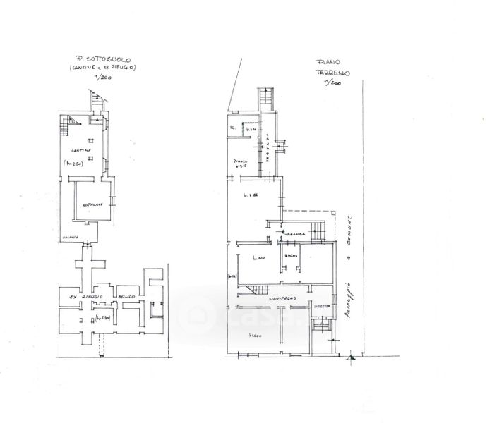
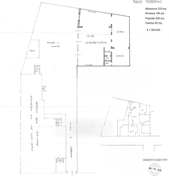
Villa in vendita Via delle Panche 97, Firenze
Salva
Casa.it
1/34
  • Street View
  • Map