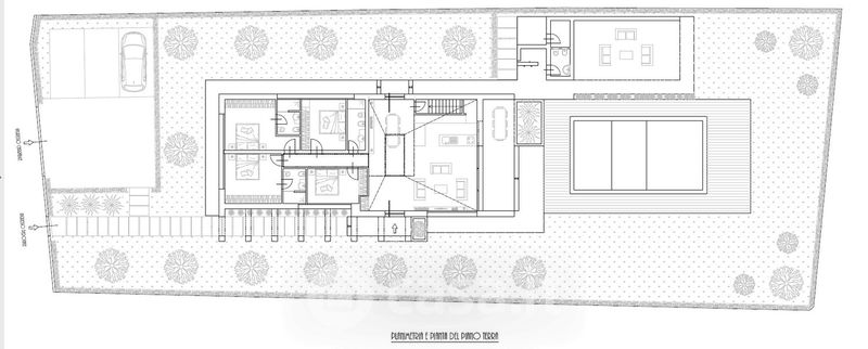
Villa in vendita Via Amendola , Forte dei Marmi
Salva
Casa.it
1/21
  • Street View
  • Map