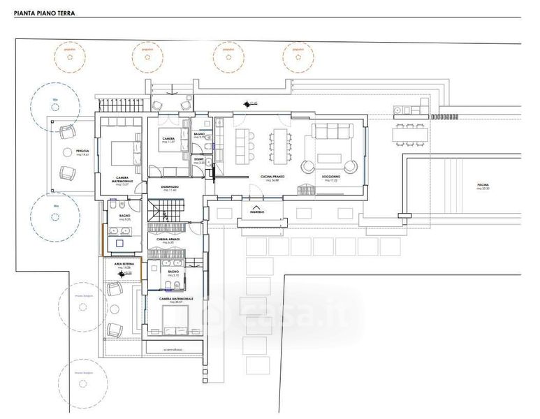
Villa in vendita Via A. Canova 36, Forte dei Marmi
Salva
Casa.it
1/42
  • Street View
  • Map