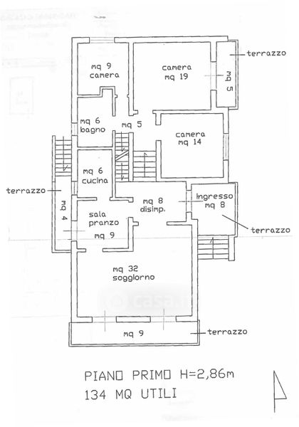
Villa in vendita Via di Poggio Seconda , Lucca
Salva
Casa.it
1/27
  • Street View
  • Map