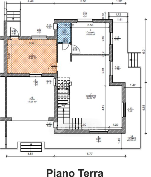
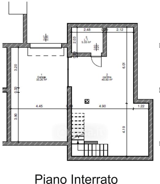
Villa in vendita Via ronchi , Massa
Salva
Casa.it
1/21
  • Street View
  • Map