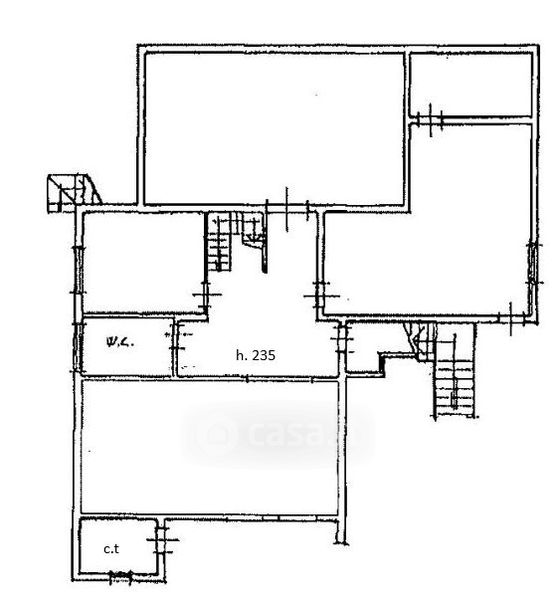
Villa in vendita Via Taddeo Landini 55, Montelupo Fiorentino
Salva
Casa.it
1/47
  • Street View
  • Map