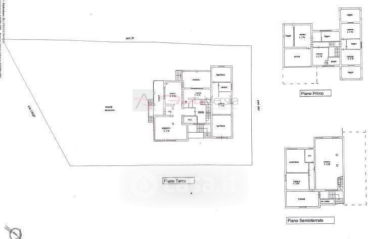
Villa in vendita Via Pero 50, Montignoso
Salva
Casa.it
1/66
  • Street View
  • Map