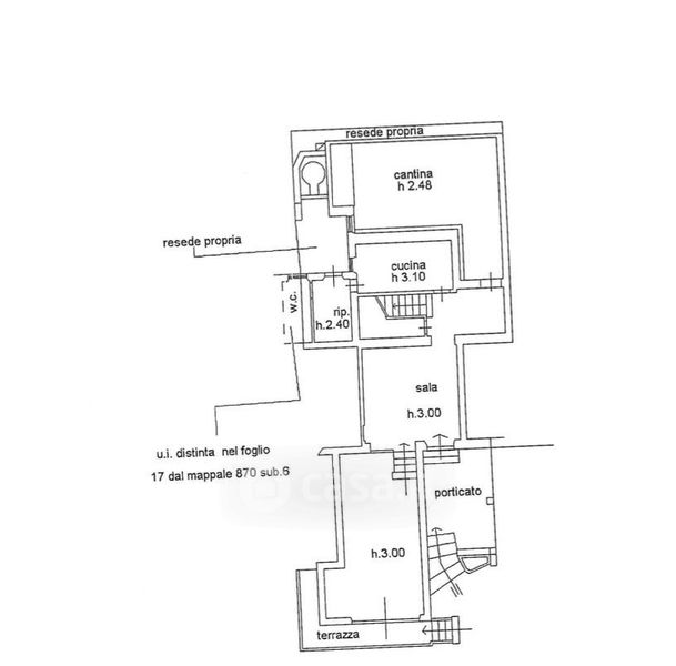
Villa in vendita Via Santa Maria , Pietrasanta
Salva
Casa.it
1/27
  • Street View
  • Map