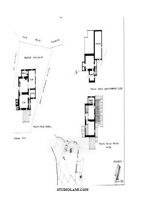
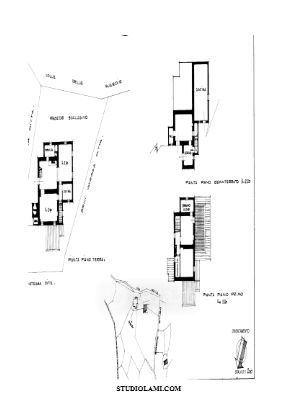
Villa in vendita Via Colle delle Guardie , Pietrasanta
Salva
Casa.it
1/43
  • Street View
  • Map