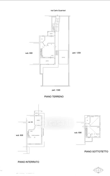
Villa in vendita Via Carlo Guarnieri , San Vincenzo
Salva
Casa.it
1/28
  • Street View
  • Map