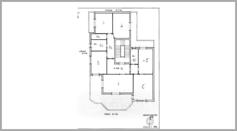
Villa in vendita Piazza Guglielmo Marconi , Castiglione del Lago
Salva
Casa.it
1/32
  • Street View
  • Map