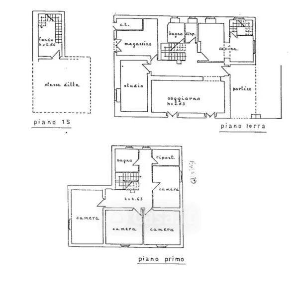
Villa in vendita Vocabolo Varesina 10, Città di Castello
Salva
Casa.it
1/52
  • Street View
  • Map