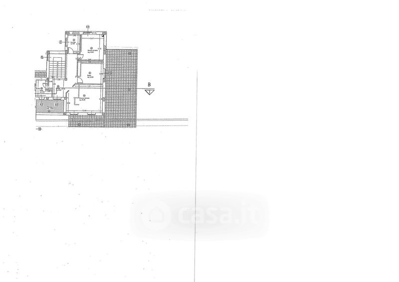
Villa in vendita Via Gentile da Foligno , Foligno
Salva
Casa.it
1/4
  • Street View
  • Map