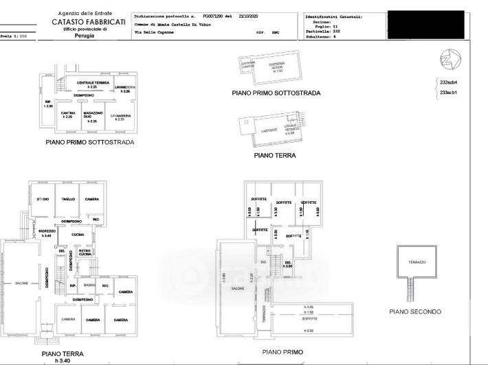
Villa in vendita Via delle Capanne , Monte Castello di Vibio
Salva
Casa.it
1/37
  • Street View
  • Map