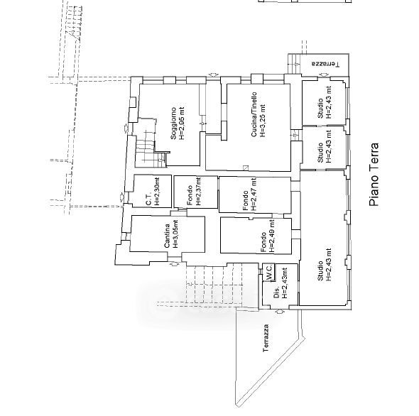
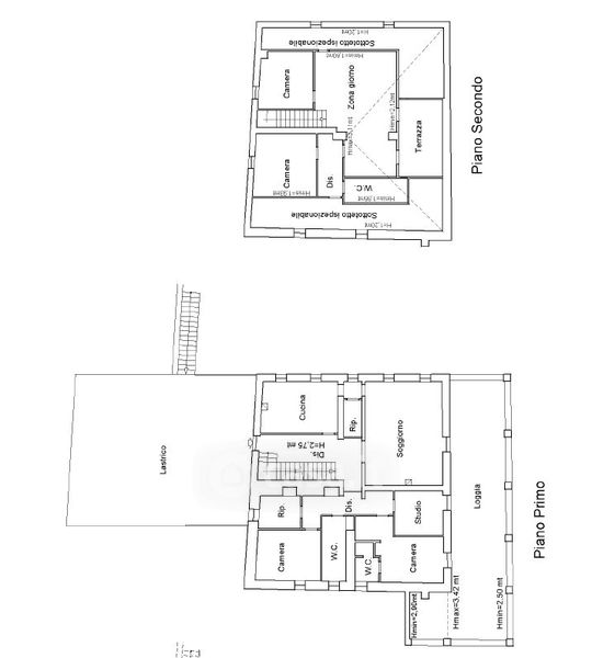
Villa in vendita Via delle Ghiande , Perugia
Salva
Casa.it
1/34
  • Street View
  • Map