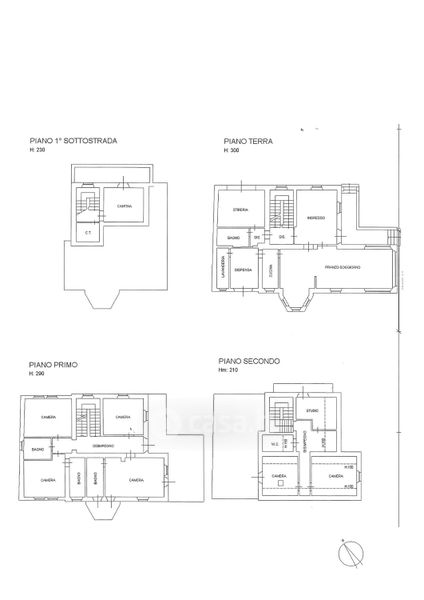
Villa in vendita Via Luigi Cima 12, Belluno
Salva
Casa.it
1/63
  • Street View
  • Map