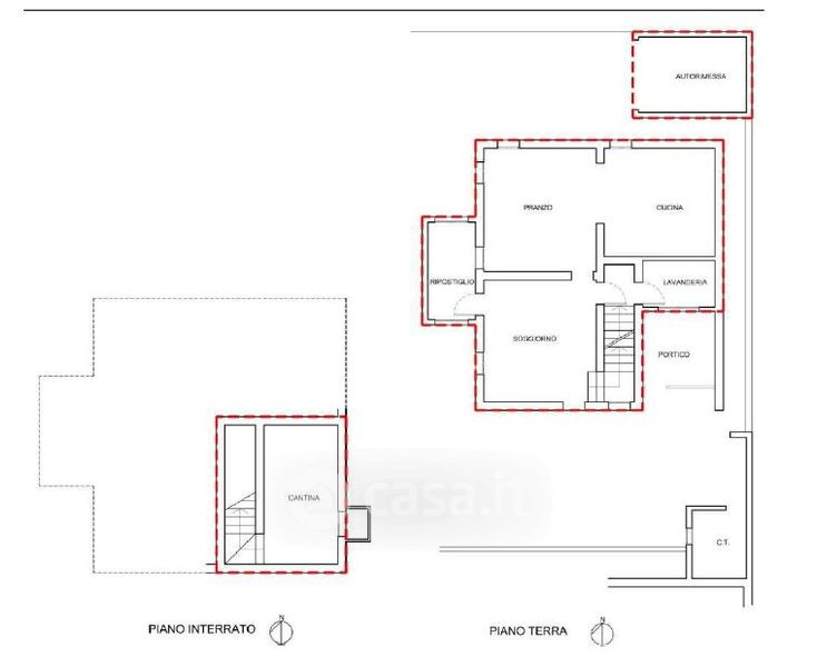
Villa in vendita Via Croceron , Cassola
Salva
Casa.it
1/40
  • Street View
  • Map