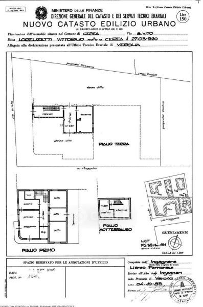
Villa in vendita Via Maggiolini , Cerea
Salva
Casa.it
1/41
  • Street View
  • Map