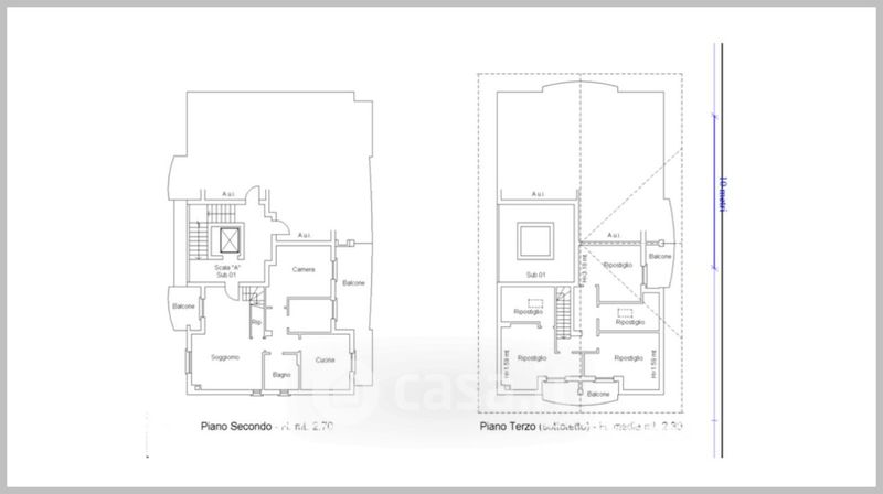
Villa in vendita Via Roma , Curtarolo
Salva
Casa.it
1/32
  • Street View
  • Map