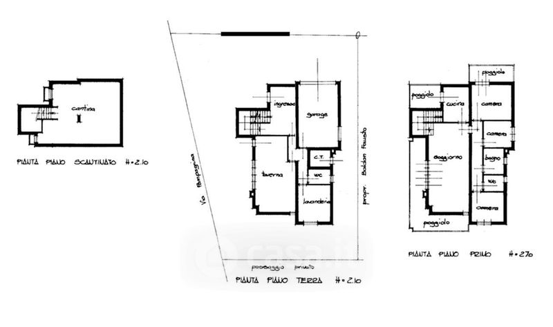
Villa in vendita Via G. Rossini , Fiesso d'Artico
Salva
Casa.it
1/34
  • Street View
  • Map