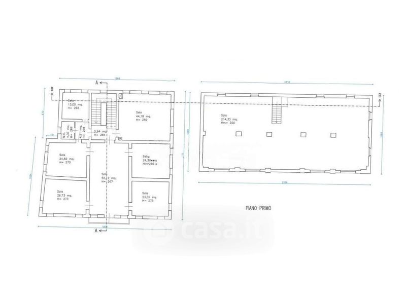
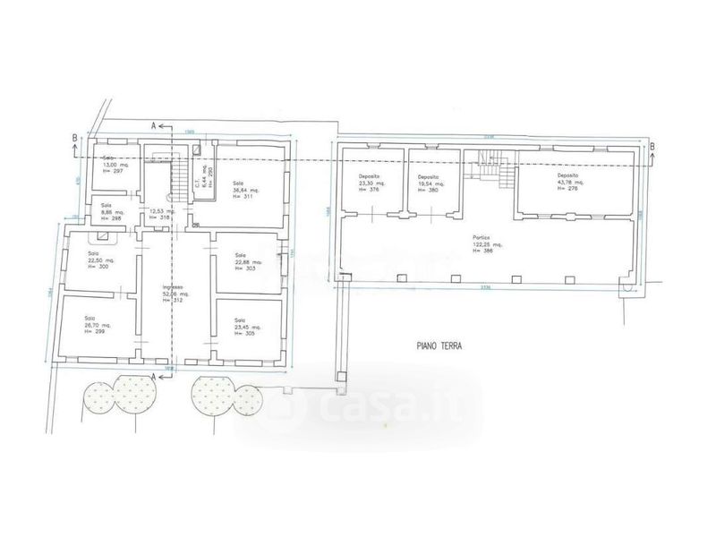
Villa in vendita Via Fabia 1, Fonte
Salva
Casa.it
1/24
  • Street View
  • Map