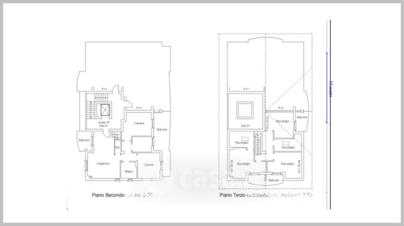
Villa in vendita Via Codalunga , Legnago
Salva
Casa.it
1/32
  • Street View
  • Map