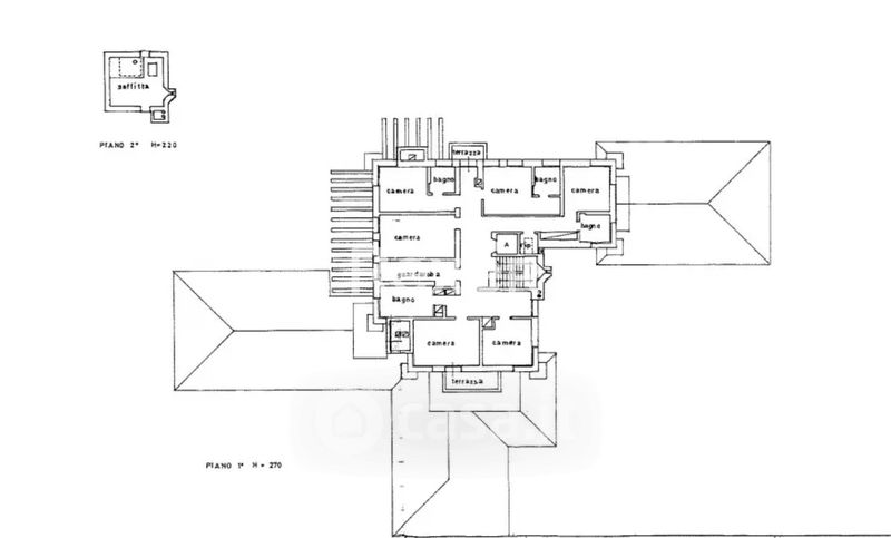
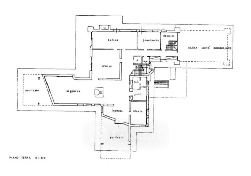
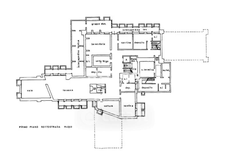
Villa in vendita Via A. De Gasperi 10 A, Montebelluna
Salva
Casa.it
1/72
  • Street View
  • Map