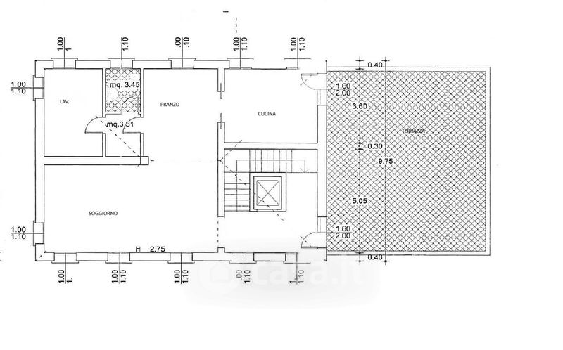
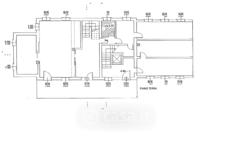
Villa in vendita Viale Madonna , Motta di Livenza
Salva
Casa.it
1/7
  • Street View
  • Map