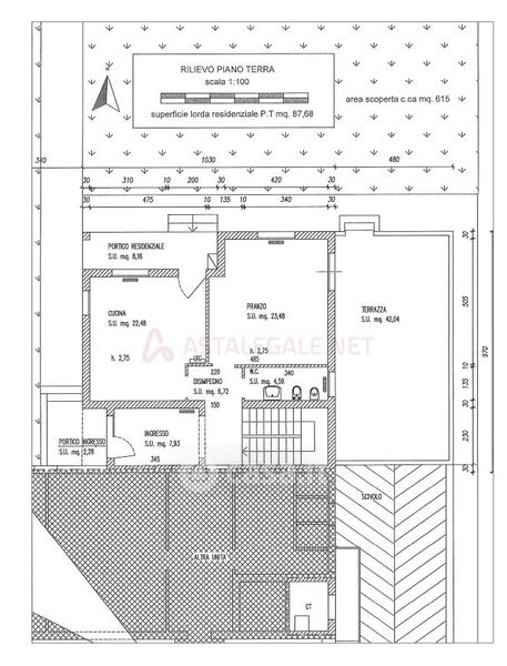
Villa in vendita Via del Lavoro , Rosà
Salva
Casa.it
1/37
  • Street View
  • Map