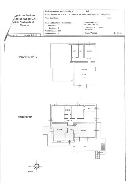
Villa in vendita Località Brentani 16, Sant'Ambrogio di Valpolicella
Salva
Casa.it
1/52
  • Street View
  • Map