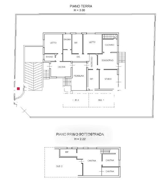
Villa in vendita Via Giacomo Matteotti , Sant'Ambrogio di Valpolicella
Salva
Casa.it
1/24
  • Street View
  • Map