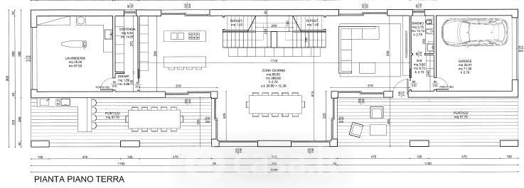
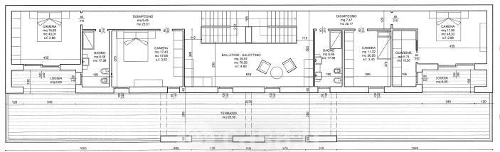
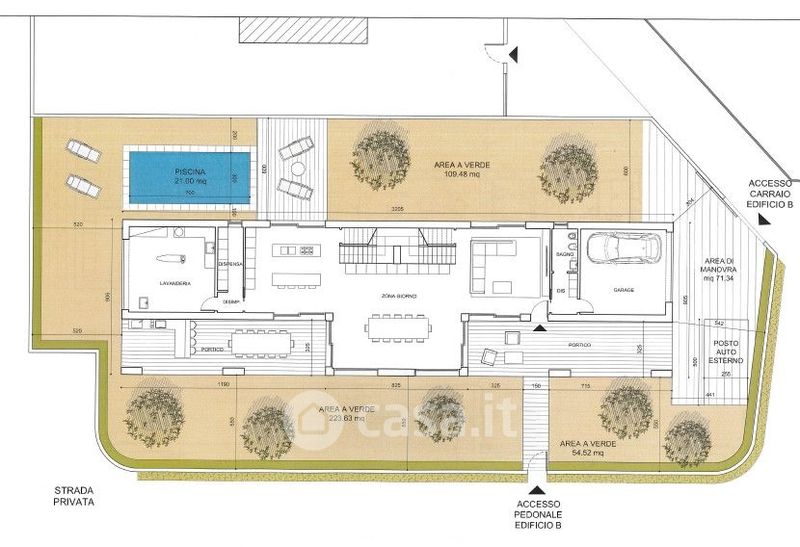
Villa in vendita Via Monti , Selvazzano Dentro
Salva
Casa.it
1/18
  • Street View
  • Map