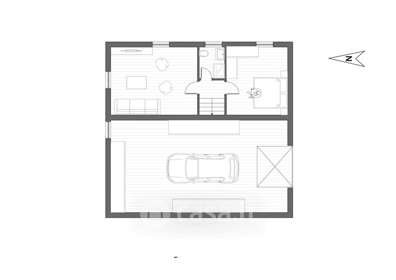
Villa in vendita Via Ca' dei Danni 17, Torri del Benaco
Salva
Casa.it
1/29
  • Street View
  • Map