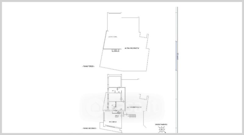
Villa in vendita Via Fermo Sisto Zerbato , Tregnago
Salva
Casa.it
1/37
  • Street View
  • Map