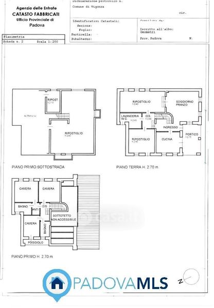
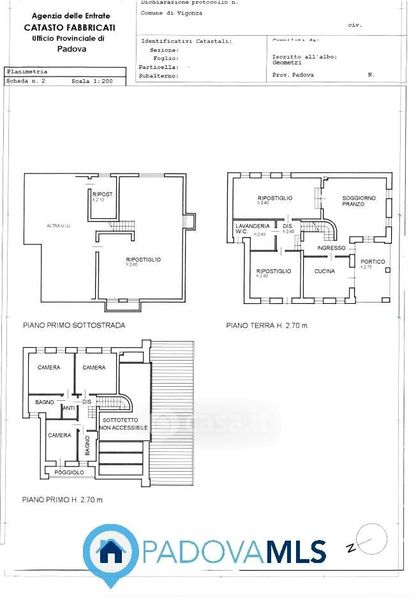
Villa in vendita Via San Gregorio Barbarigo , Vigonza
Salva
Casa.it
1/28
  • Street View
  • Map