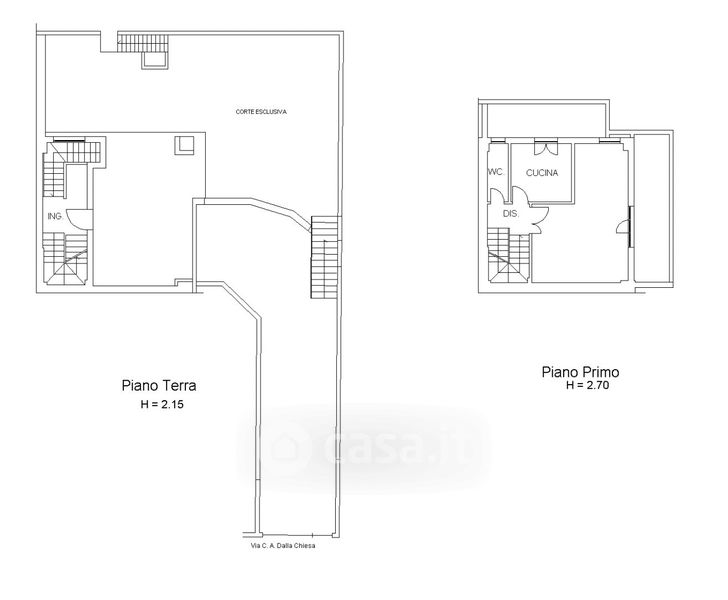
Villetta a schiera in vendita Via Carlo Alberto Dalla Chiesa , Francavilla al Mare
Salva
Casa.it
1/40
  • Street View
  • Map