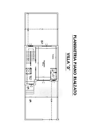
Villetta a schiera in vendita Via Filippo Turati 43, Brusciano
Salva
Casa.it
1/59
  • Street View
  • Map