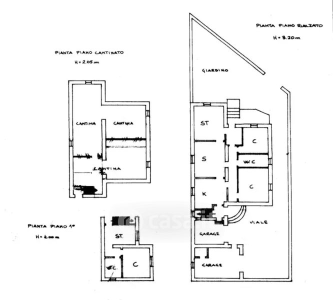
Villetta a schiera in vendita Via Piave 17, San Salvatore Telesino
Salva
Casa.it
1/54
  • Street View
  • Map