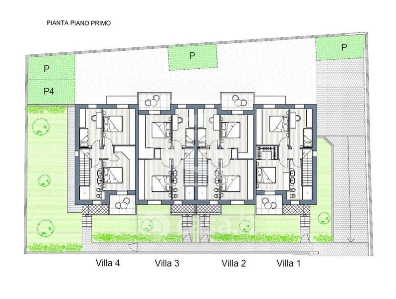
Villetta a schiera in vendita Via 2 Giugno , Albinea
Salva
Casa.it
1/13
  • Street View
  • Map