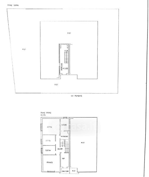
Villetta a schiera in vendita Via Piemonte 1, Bagnacavallo
Salva
Casa.it
1/27
  • Street View
  • Map