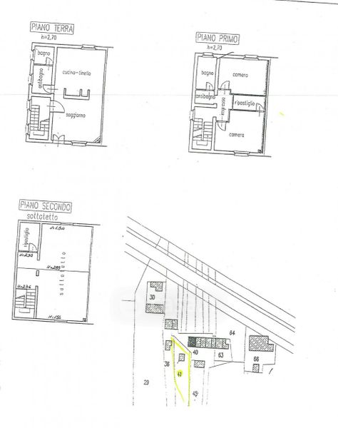
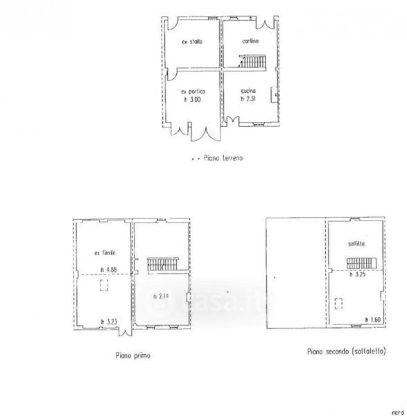
Villetta a schiera in vendita Via Argine a Destra del Parma 24, Colorno
Salva
Casa.it
1/105
  • Street View
  • Map