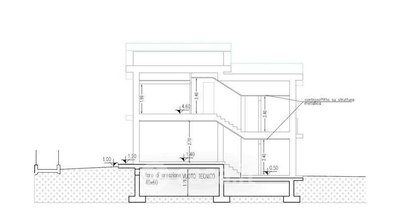
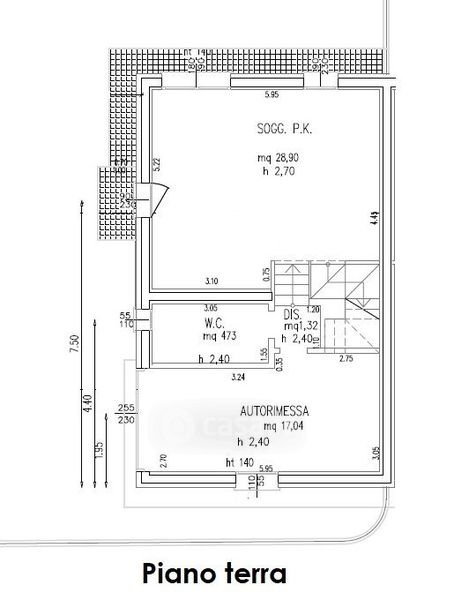
Villetta a schiera in vendita Via del Pino 9, Gatteo
Salva
Casa.it
1/11
  • Street View
  • Map