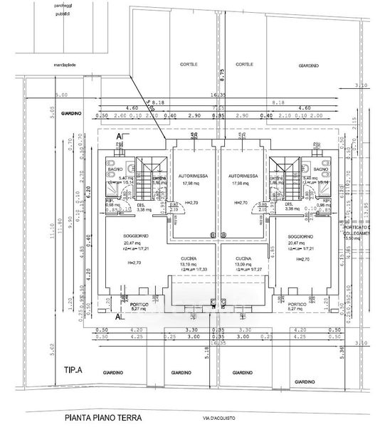
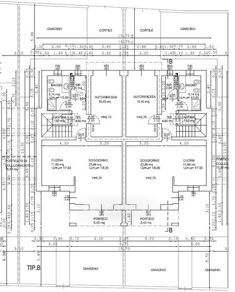
Villetta a schiera in vendita Via salvo d'acquisto , Guastalla
Salva
Casa.it
1/8
  • Street View
  • Map