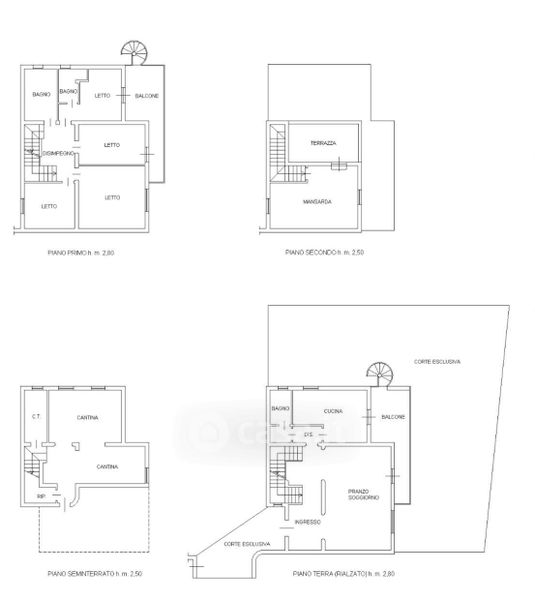
Villetta a schiera in vendita Via Guarino Guarini 80, Modena
Salva
Casa.it
1/24
  • Street View
  • Map