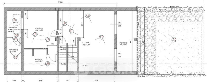
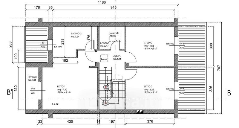
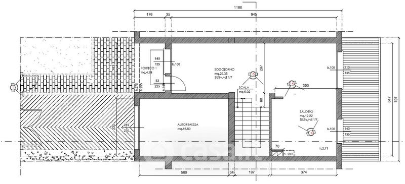
Villetta a schiera in vendita Via Giacomo Matteotti , Monte San Pietro
Salva
Casa.it
1/30
  • Street View
  • Map