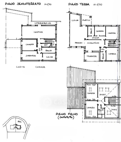
Villetta a schiera in vendita Via San Bignami , Monte San Pietro
Salva
Casa.it
1/48
  • Street View
  • Map