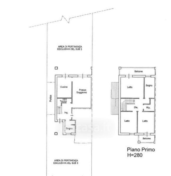
Villetta a schiera in vendita Via Camillo Benso di Cavour 5, Nonantola
Salva
Casa.it
1/26
  • Street View
  • Map