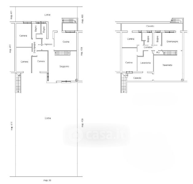
Villetta a schiera in vendita Via Don Giovanni Minzoni , San Lazzaro di Savena
Salva
Casa.it
1/24
  • Street View
  • Map