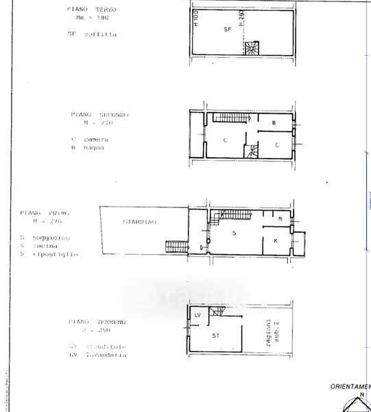
Villetta a schiera in vendita Via Gramsci 23, Sissa Trecasali
Salva
Casa.it
1/47
  • Street View
  • Map